floor plans with recovery realty

Community Floor Plans

VIEW ALL OF THE MOST POPULAR FLOOR PLANS FROM PUTLE AND DEL WEBB

Sun City Lincoln Hills

A cozy living room with a light gray sectional sofa adorned with decorative pillows, a small coffee table holding a plant, a white bookshelf filled with books, a window allowing natural light, and plants decorating the space.

Sun City Lincoln Hills is an active adult retirement community located in Lincoln, California in Placer County with 6,703 single family and 80 condominiums on 2,992 acres

Designed for active adults 55+, the amenities include a 68,000 SF Orchard Creek Lodge, a second 37,000 SF Kilaga Springs Lodge, a Sports Complex that includes a regulation softball field, 11 lighted tennis courts, four pickleball courts, 12 bocce ball courts, a basketball half-court, four horseshoe pits, and an area for volleyball.  There are two 18-hole championship courses that were designed by Billy Casper/Greg Nash and create two distinct 18-hole layouts with traditional out-and-back configurations.  The other community amenities include 16 billiard tables, four pools, and 19 miles of walking trails.

The first set of floorplans were developed by Del Webb.  Approximately half way through the development, Pulte bought up Del Webb interests and much like any large development, created a whole new set of floorplans, which are themed after California Counties.  Hence, the Del Webb homes were built earlier in the developement, and will be older than the homes built by Pulte.  Pulte took the popular floorplans and made a few changes – so you’ll see a very similar style between, for instance, the Pine Hill and the Alpine with cuts to features such as accent windows.  There are two that were added towards the end of the development phase called Cottages:  Cabria and Coronado (not named after a county) that are built on the North end of Sun City – the latter being a very unique two story which totally departs from Del Webb’s concept that single level homes are the primary interest of the active adult – which proved to be a difficult sale unless the person had a caregiver – whereas that style may work well.

Front porch of a house with a white door and ornate ironwork, surrounded by green plants and trees, with stairs leading up to the entrance.

12 single story floor plans from 1,450 to 2,372 square feet. Open great rooms, patios, and flexible den options.

Premier Series

Premier Series offers 12 single story home plans from 1,450 to 2,372 square feet. Each layout centers on an open great room with a kitchen and nook or dining area, plus a patio, laundry, and garage options from 2 car to 3 car. Many plans include a den, optional Bedroom 3, and optional fireplace, with multiple exterior elevation choices.

Premier Series - Floor Plans

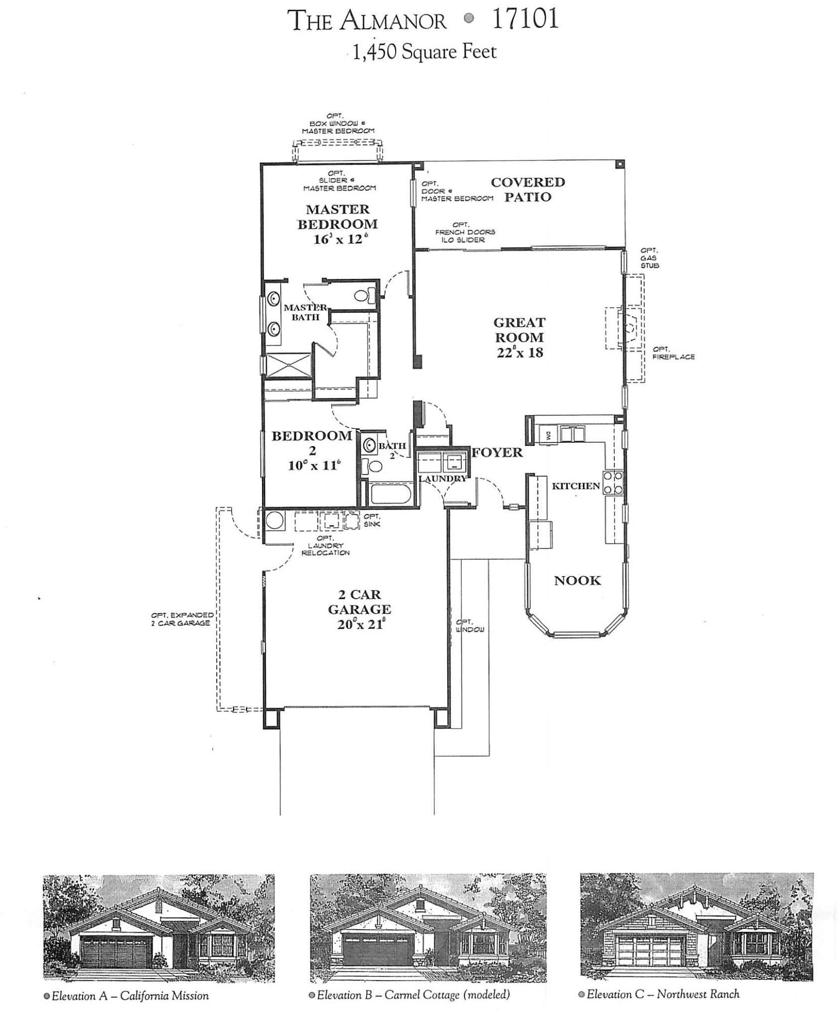
Architectural floor plan for a house called 'The Almanor,' 17101, with a total area of 1,450 square feet. The plan includes various rooms such as master bedroom, master bath, second bedroom, bathroom, laundry, kitchen, nook, great room, garage, and covered patio, with annotations for optional features and elevations.
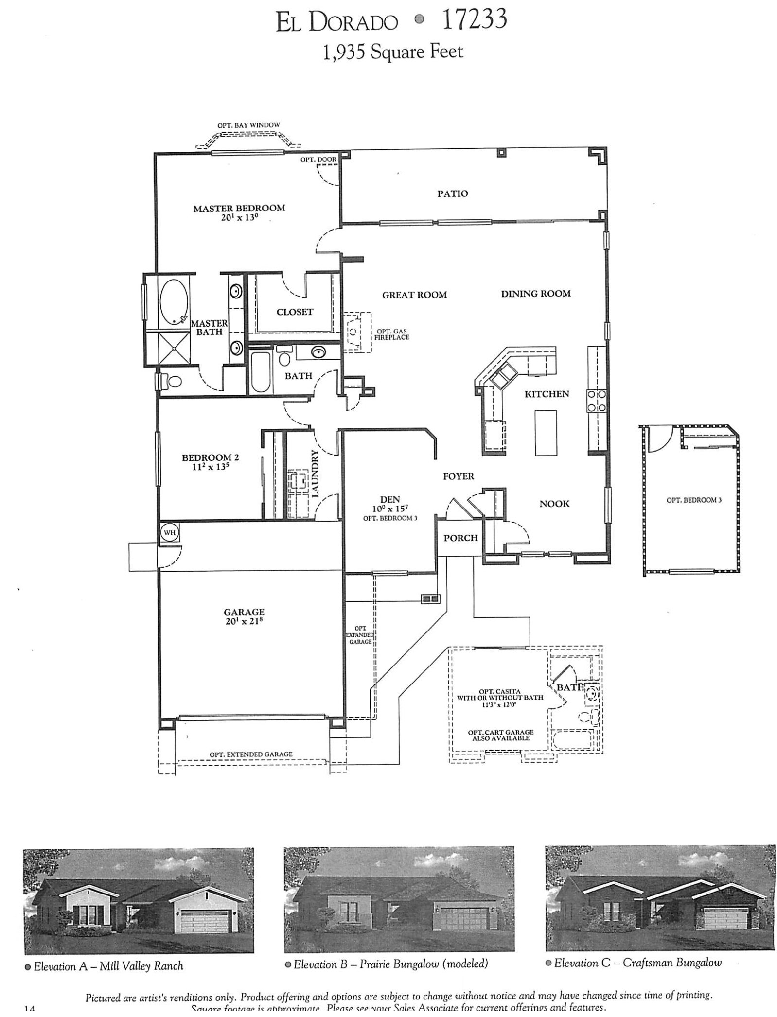
Floor plan for a house called El Dorado with various labeled rooms, measurements, and options for modifications.
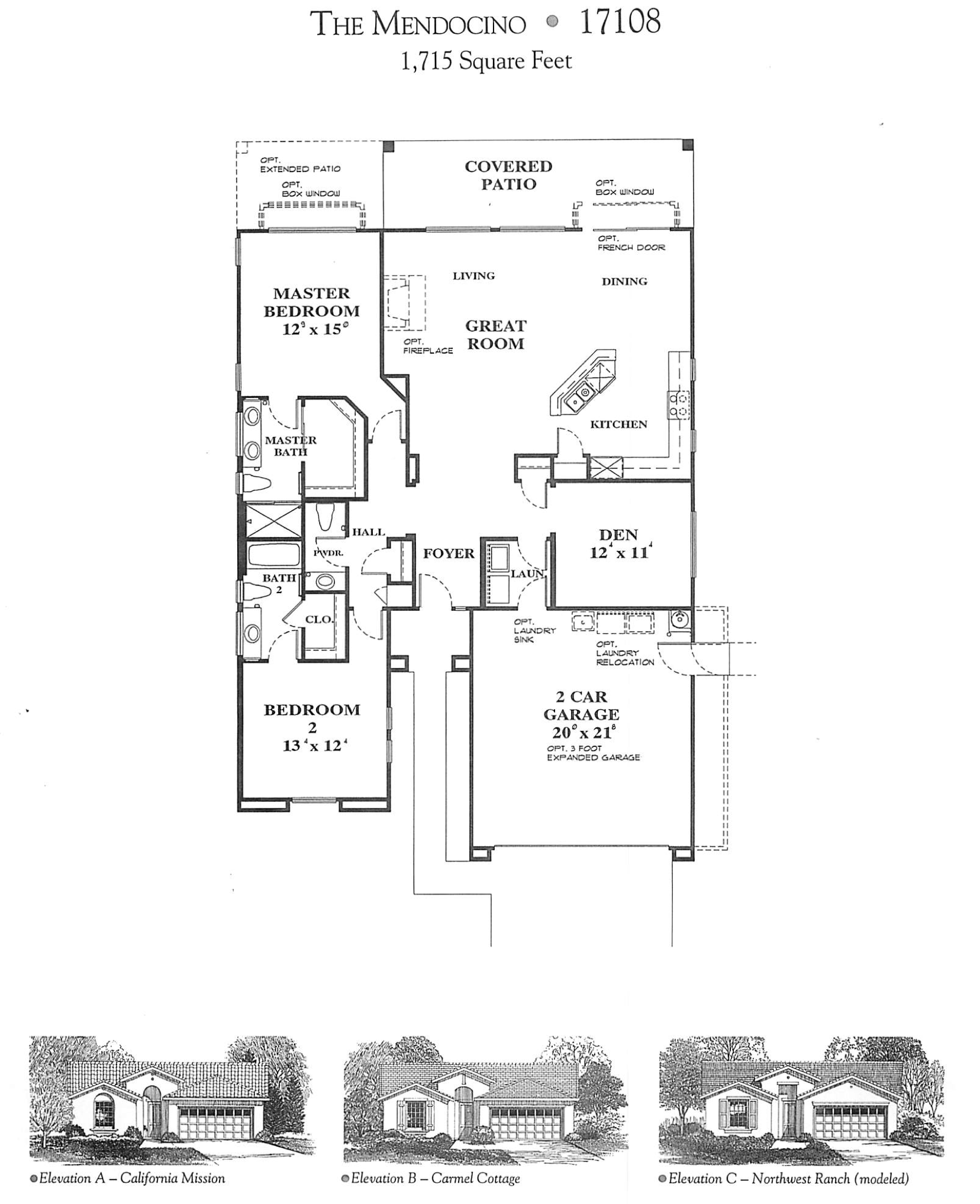
Architectural floor plan of a house named The Mendocino, with a total area of 1,715 square feet. The plan includes labeled rooms such as a master bedroom, living room, kitchen, dining area, great room, den, bathrooms, laundry room, garage, and outdoor covered patio. There are optional features like extended patio, box window, French door, and fireplace. The bottom of the image shows elevation drawings of three house styles: California Mission, Carmel Cottage, and Northwest Ranch.
A detailed architectural blueprint of a house floor plan. It includes labeled areas such as patio, dining room, great room, kitchen, laundry, bedroom, bathroom, master bedroom, master bath, closet, and garage. The plan features optional doors and expansions, with measurements for some rooms. The top of the blueprint shows the house model 'Plumas 17232,' with 1,837 square feet.
Image showing a floor plan of a house with labeled rooms including a garage, laundry, kitchen, nook, great room, patio, master bedroom, master bath, closet, den, and secondary bedrooms. It also includes details like dimensions and optional features.
Architectural floor plan of a house in Santa Cruz, with various rooms labeled, including master bedroom, kitchen, garage, and other living spaces, along with three elevation images of different types of bungalows.
A black and white architectural house plan with a front porch, garage, living areas, bedrooms, and yard. Contains labeled rooms and measurements.
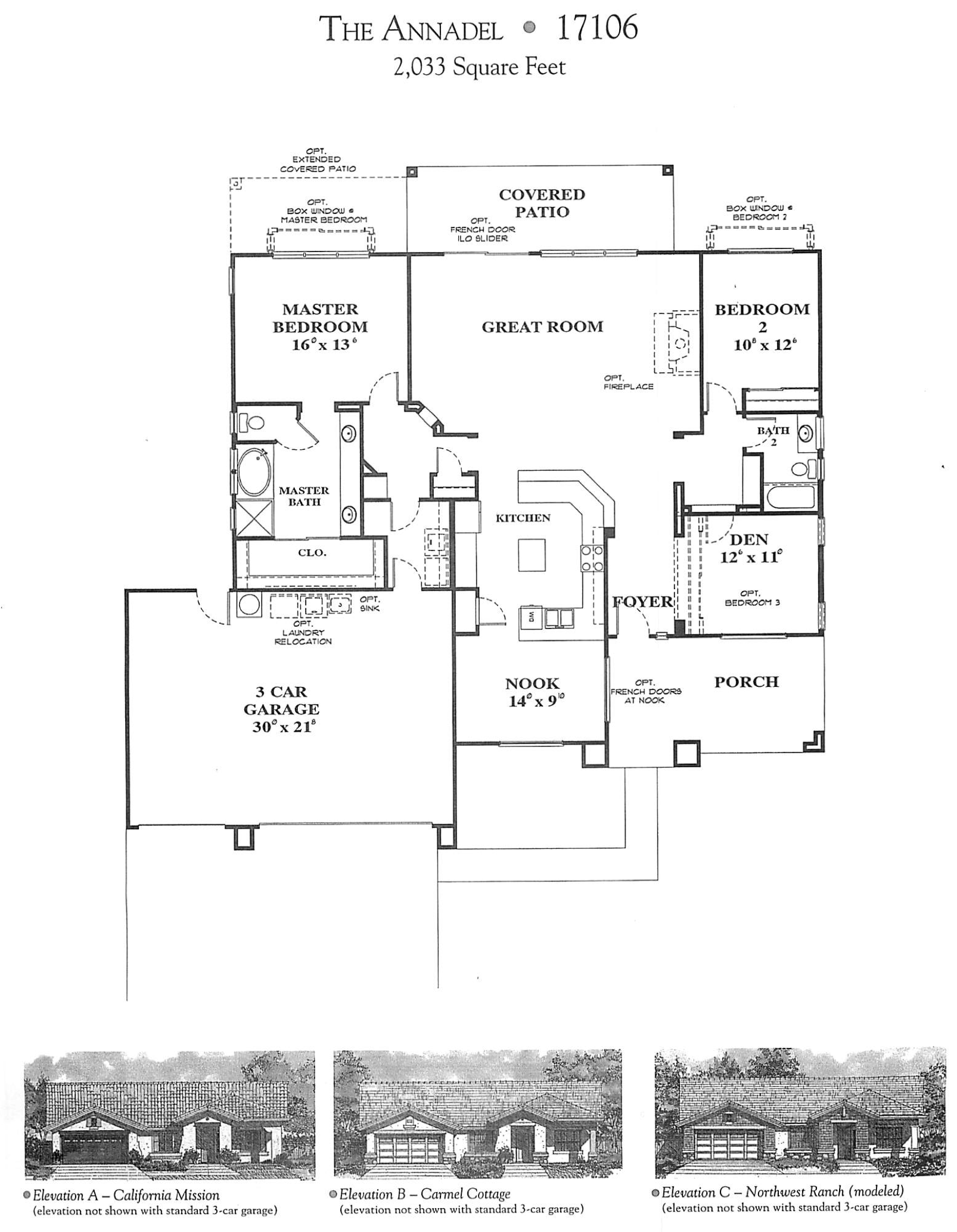
Floor plan of a house called The Annadel, with a total area of 2,033 square feet. The plan highlights a covered patio, master bedroom with an en suite bathroom, second bedroom, den, kitchen, great room, porch, laundry, and a three-car garage. The plan includes different elevation options for the front of the house: California Mission, Carmel Cottage, and Northwest Ranch.
Black and white illustration of a house with a front porch, trees, and a landscaped lawn.
Architectural blueprint of a house with labeled rooms including master bedroom, master bath, den, porch, kitchen, dining room, great room, laundry, garage, and porch. The blueprint is titled THE BALDWIN - 17103.
Blueprint of a house named 'The Lassen - 17102' showing interior layout with labeled rooms such as garage, bedroom, bath, den, foyer, kitchen, dining, great room, covered patio, master bedroom, and master bath. The house has a 2 car garage, a laundry area, and an outdoor landscaped front yard with trees.
Floor plan of a house named Ventura with details about dimensions, rooms, and optional features, including a patio, master bedroom, great room, kitchen, laundry, garage, den, and additional bedrooms.
A two-story white house with a stone foundation, surrounded by a garden with pink and white flowers. The house has a staircase leading to the front door, a small balcony with a white railing, and multiple windows. Tall trees are visible in the background.

Estate Series

14 single story floor plans from 1,926 to 3,068 square feet. Open great rooms, covered patios, and flexible den or optional bedroom layouts.

Estate Series offers 14 single story home plans from 1,926 to 3,068 square feet. Each layout centers on an open great room with a kitchen and nook or dining area, plus a covered patio, laundry, and garage options from 2 car to 3 car. Many plans include a den, optional Bedroom 3, and flexible spaces like hobby, storage, or cart garage areas, with multiple exterior elevation choices.

Estate Series - Floor Plans

Architectural blueprint of a property named 'The Atherton' with a total area of 2,339 square feet, including detailed drawings of elevation views labeled California Mission, Carmel Cottage, and Northwest Ranch, and featuring a front yard with trees and a row of similar houses.
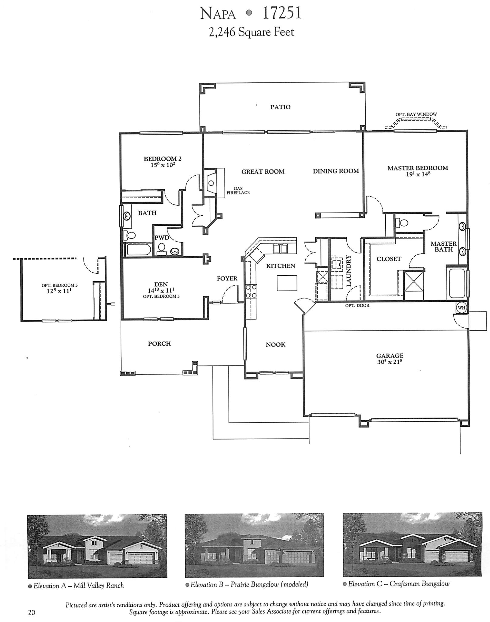
Floor plan of a house model number 17252 called Marin with an area of 2,504 square feet. It includes labels for rooms such as master bedroom, living room, kitchen, dining room, garage, and various bedrooms and bathrooms. The plan features optional elements like a bay window, bedroom 3, and outdoor spaces like patio and porch. At the bottom, there are artist renderings of three different house elevations labeled Mill Valley Ranch, Prairie Bungalow, and Craftsman Bungalow.
Black and white architectural floor plan of a house with rooms labeled including patio, bedrooms, great room, dining room, kitchen, laundry, and garage, along with exterior elevation images of different house styles.
Floor plan of a house in Santa Barbara, listing room dimensions and features. Includes a patio, family room, kitchen, bedrooms, bathrooms, laundry, garage, two optional rooms, and exterior elevation photos of three house styles.
Floor plan of a house labeled 'Santa Clara,' with various rooms such as bedrooms, bathrooms, laundry, kitchen, living and dining rooms, a garage, and a patio, along with measurements and optional features.
Architectural floor plan for a house named 'The Sausalito' with 2,150 square feet, including rooms such as family room, kitchen, bedrooms, bathrooms, living room, dining area, laundry, garage, and outdoor covered patio, with three house elevation options shown at the bottom.
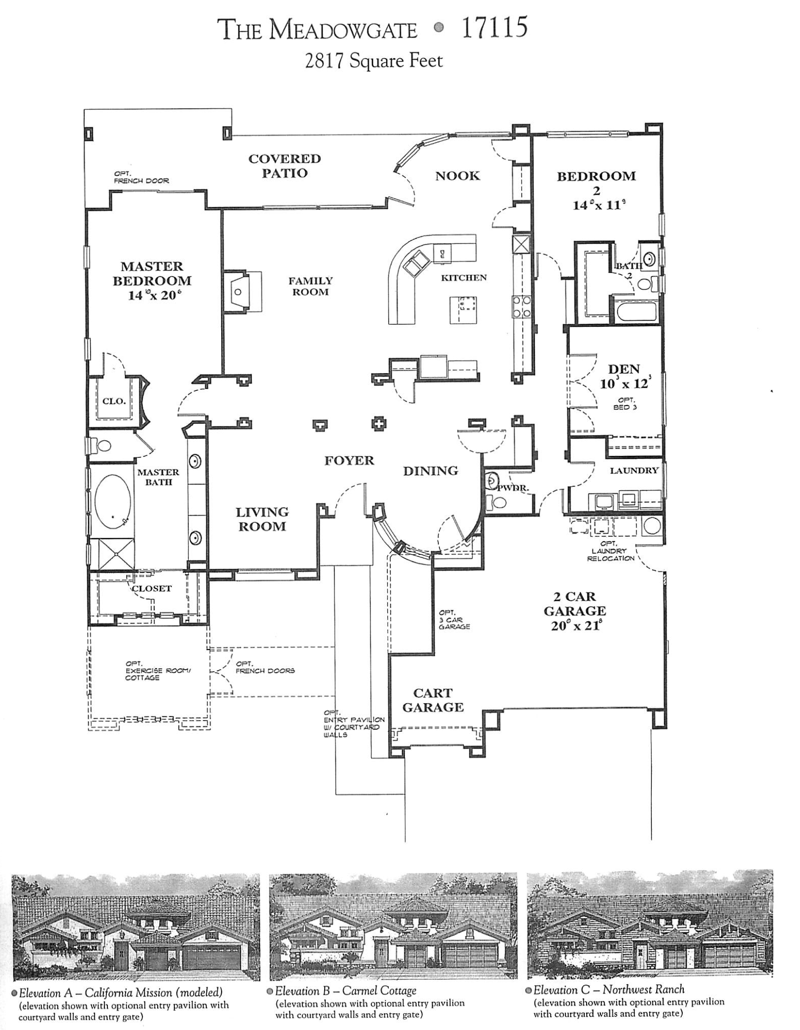
Architectural plan of The Meadowgate house showing different elevation options and a row of houses at the bottom.
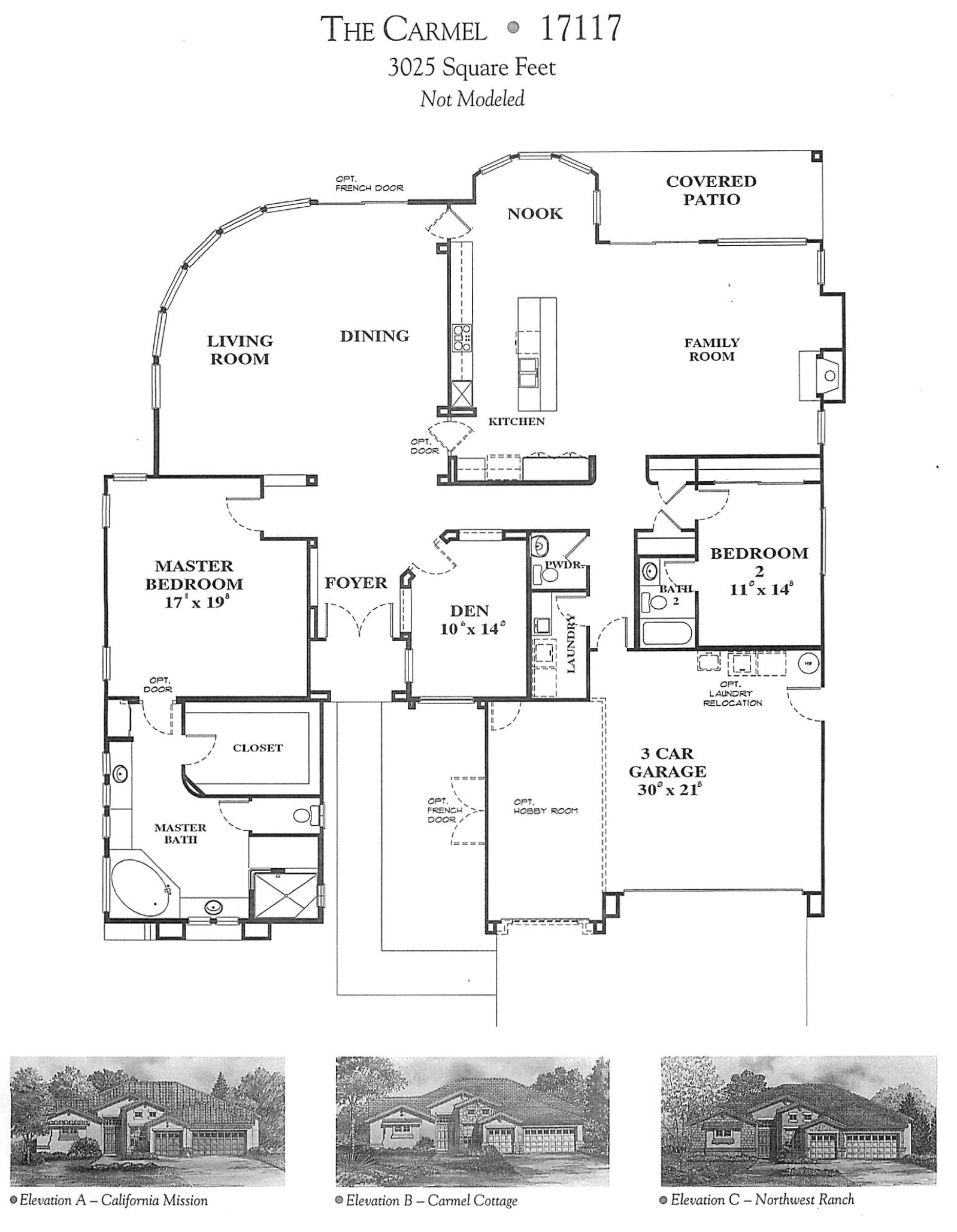
Floor plan of a house named The Carmel, with a specified area of 3025 square feet, not modeled. The plan includes various labeled rooms such as living room, master bedroom, den, kitchen, nook, family room, covered patio, bedroom 2, laundry room, and a 3-car garage. Architectural elevations of three house designs called California Mission, Carmel Cottage, and Northwest Ranch are also shown at the bottom of the image.
Architectural floor plan of a house with labeled rooms including a porch, entry, den, kitchen, great room, bedrooms, bathrooms, laundry, garage, and optional features. There are also exterior elevation drawings of three different house styles at the bottom.
Architectural floor plan of a house labeled 'Marin', with a total square footage of 2,504 sq feet. The plan includes various rooms such as living room, master bedroom, kitchen, den, multiple bedrooms, bathrooms, and a garage. Features like a patio, laundry area, and specific elevations (Mill Valley Ranch, Prairie Bungalow, Craftsman Bungalow) are also indicated.
Architectural plans and elevations for a residential area called The Monterey, with a model number 17113 and 2,468 square feet. Includes front elevations of three house styles: California Mission, Carmel Cottage, and Northwest Ranch, with optional entry pavilions and courtyard walls.
Architectural floor plan for a home in Sonoma, with details of rooms, dimensions, and elevations including Mill Valley Ranch, Prairie Bungalow, and Craftsman Bungalow. Also includes exterior photos of each elevation.
Architectural drawing of a house plan titled 'The Springcrest 17114, 2,608 square feet,' showing different elevation options with descriptions for California Mission, Carmel Cottage, and Northwest Ranch styles, including exterior views and courtyard details at the bottom.
Architectural floor plan for a house called 'The Tiburon' with total area of 2,503 square feet, including labels for rooms such as master bedroom, kitchen, great room, and garage, and exterior elevation illustrations.
Floor plan of a house named The Ventana, with various rooms including a porch, foyer, great room, den, covered patio, master bedroom and bath, bedroom 2, laundry, storage, garage, and landscaping with trees and shrubs surrounding the house.

Pulte Plans

Del Webb Floor Plans

Frequently Asked Questions

Still have questions? Take a look at the FAQ or reach out anytime. If you’re feeling ready, go ahead and apply.

  • We offer a range of solutions designed to meet your needs—whether you're just getting started or scaling something bigger. Everything is tailored to help you move forward with clarity and confidence.

  • Getting started is simple. Reach out through our contact form or schedule a call—we’ll walk you through the next steps and answer any questions along the way.

  • We combine a thoughtful, human-centered approach with clear communication and reliable results. It’s not just what we do—it’s how we do it that sets us apart.

  • You can reach us anytime via our contact page or email. We aim to respond quickly—usually within one business day.

  • We offer flexible pricing based on project type and complexity. After an initial conversation, we’ll provide a transparent quote with no hidden costs.